De Marktplaats voor Veilingen
Eerlijk en Transparant
Groot en Afwisselend Aanbod
Bereikbare Klantenservice
Duizenden Tevreden klanten

Buitenverblijf met berging 400x1100x256 cm

Kavel: 733-50 • Verkoper: PR Deal Overkappingen, Tuinhuizen, Schuttingen & Tuinhout • Nederweert, NL
Biedingen: 36
Favorieten:

Deze kavel is gesloten

Gesloten op:
21 apr. 2025 19:57

Laatste bod:

€ 2020

Specificaties

Bied op ruim 4548 kavels in meer dan 36 categorieën
Specificaties
Model Met berging
Materiaal Douglas
Lengte 4,00 m
Breedte 11,00 m
Hoogte 2,56 m
Gewicht 950,00 kg
Conditie Nieuw
Opmerkingen

-

Omschrijving

Palen: 150x150 mm
Liggers: 120x120 mm
Dakbalken: 50x150 mm
Dakplanken: 18 mm dik
Regelwerk: 45x70 mm
Wanden: Zweeds Rabat, zwart geïmpregneerd

Deur:
1 enkele deur met palen van 120x120 mm
Doorgang: 100 cm (kan zowel links als rechts gebruikt worden)

Montage:
Buitenverblijf wordt geleverd als bouwpakket, op maat gezaagd
Inclusief bevestigingsmateriaal en handleiding
Dakplanken en wanden moeten tijdens de montage op maat worden gezaagd
Berging kan links of rechts geplaatst worden bij montage

Extra informatie:
Geleverd zonder grondankers en betonpoeren
Wordt geleverd zonder dakleer
Afmeting pakket: 1x 420x125x120cm, 1x 420x125x80cm. Totaal gewicht: 1.500kg

De afmeting 1100x400cm is de buitenzijde van de dakrand
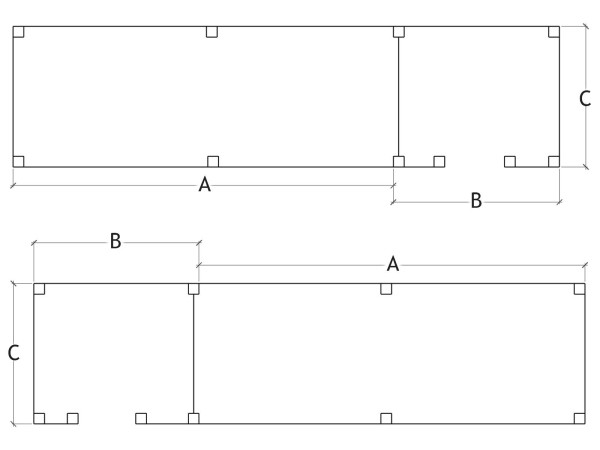
Afmeting palen maat, zie schets:
A : 742cm
B : 300cm
C : 342cm
Totaal aantal palen 2 st. 120x120mm 8 st. 150x150mm


Bijzondere veilingbepalingen
  • XL Auctions is niet de verkoper, maar veilt als bemiddelaar in opdracht van een derde partij.
  • Afhalen op: Hulsenweg 7 F
    6031 SP Nederweert

    Datum: 02-05-2025 van 10:00 tot 15:00
Verkoper
Kavel informatie

Verzenden:

Ophalen:

Additionele kosten:

Algemene informatie

Het (auto)bod is exclusief 15,00% opgeld.

(Auto)Bod is exclusief BTW.

(Auto)Bod is exclusief eventuele verzendkosten.

Eventuele verzendkosten zijn inclusief BTW

(Auto)Bod is exclusief eventuele additionele kosten.

Eventuele additionele kosten zijn exclusief BTW

Als er in de laatste 2 minuten geboden wordt op een kavel, wordt er 2 minuten toegevoegd aan de sluittijd

Top kavels

Bied op ruim 4548 kavels kavels in meer dan 36 categorieën.
x
Download XL Auctions app
Sneller bieden?

Download onze app